Modul Family

od 79.900€ s DPH

Atraktívny modulový dom pre náročnejších

Priestranný a atraktívny modulový dom navrhnutý pre pohodlné celoročné bývanie, ktorý ponúka dostatok miesta pre rodinu aj každodenný komfort moderného života. Vďaka premyslenej dispozícii poskytuje harmonické spojenie funkčnosti a praktického využitia priestoru.

Dom zahŕňa dve detské izby, samostatnú spálňu, vzdušnú obývačku prepojenú s kuchyňou a dostatok úložného priestoru, aby mal každý člen domácnosti svoje miesto. Denná zóna je navrhnutá ako prirodzené centrum rodinného života – priestor na spoločné chvíle, oddych aj stretnutia s priateľmi.

Vďaka prepojeniu dvoch modulov dom ponúka variabilné dispozičné riešenie a zároveň možnosť ďalšieho rozšírenia. Jednoducho ho môžete doplniť o terasu, ktorá prepojí interiér so záhradou, alebo o prestrešené parkovanie, ktoré zvýši praktickosť každodenného bývania.
Výsledkom je moderný rodinný dom, ktorý kombinuje komfort klasického bývania s flexibilitou modulovej architektúry.
Rozmery domu
2x 10 x 4 m
Zastavaná plocha
80 m2
Úžitková plocha
68,31 m2
Počet izieb
4
Doba dodania
6-8 týždňov

Skladba materiálov našich domov

```html ```

Čo je v základnej cene štandardného vyhotovenia?

Modulové drevodomy MODULMAX dodávame v kompletnom štandardnom vyhotovení, pripravené na užívanie. Základná cena zahŕňa nasledovné položky:
01
Konštrukcia a exteriér
nosná modulová konštrukcia z dreva (KVH)
tepelná izolácia Climatizer Plus vhodná na celoročné bývanie
strecha - PVC fólia s okrajovým poplastovaným oplechovaním; odvodňovací systém
fasáda – silikónová omietka Baumit SilikonTop (hrúbka zrna 1,5 mm)
plastové okná a vstupné dvere s izolačným trojsklom Aluplast INTERTEC 85
02
Interiér
laminátové podlahy Egger
interiérové dvere so zárubňami
sadrokartónové steny a stropy s bielym náterom
03
Technické vybavenie
kompletná elektroinštalácia (bez svietidiel)
elektrický bojler na ohrev vody
stropné vykurovanie pomocou infra fólií
04
Kúpeľňa
hotová kúpeľňa so sanitou (sprchový kút, wc, umývadlo) (kúpeľňu vieme dodať aj bez sanity alebo ju prispôsobiť individuálnym požiadavkám zákazníka)
*Uvedená špecifikácia predstavuje štandardné vyhotovenie modulového domu. Individuálne úpravy, výber iných materiálov alebo rozšírenie výbavy sú možné a budú posudzované a nacenené individuálne na základe konkrétnych požiadaviek zákazníka.

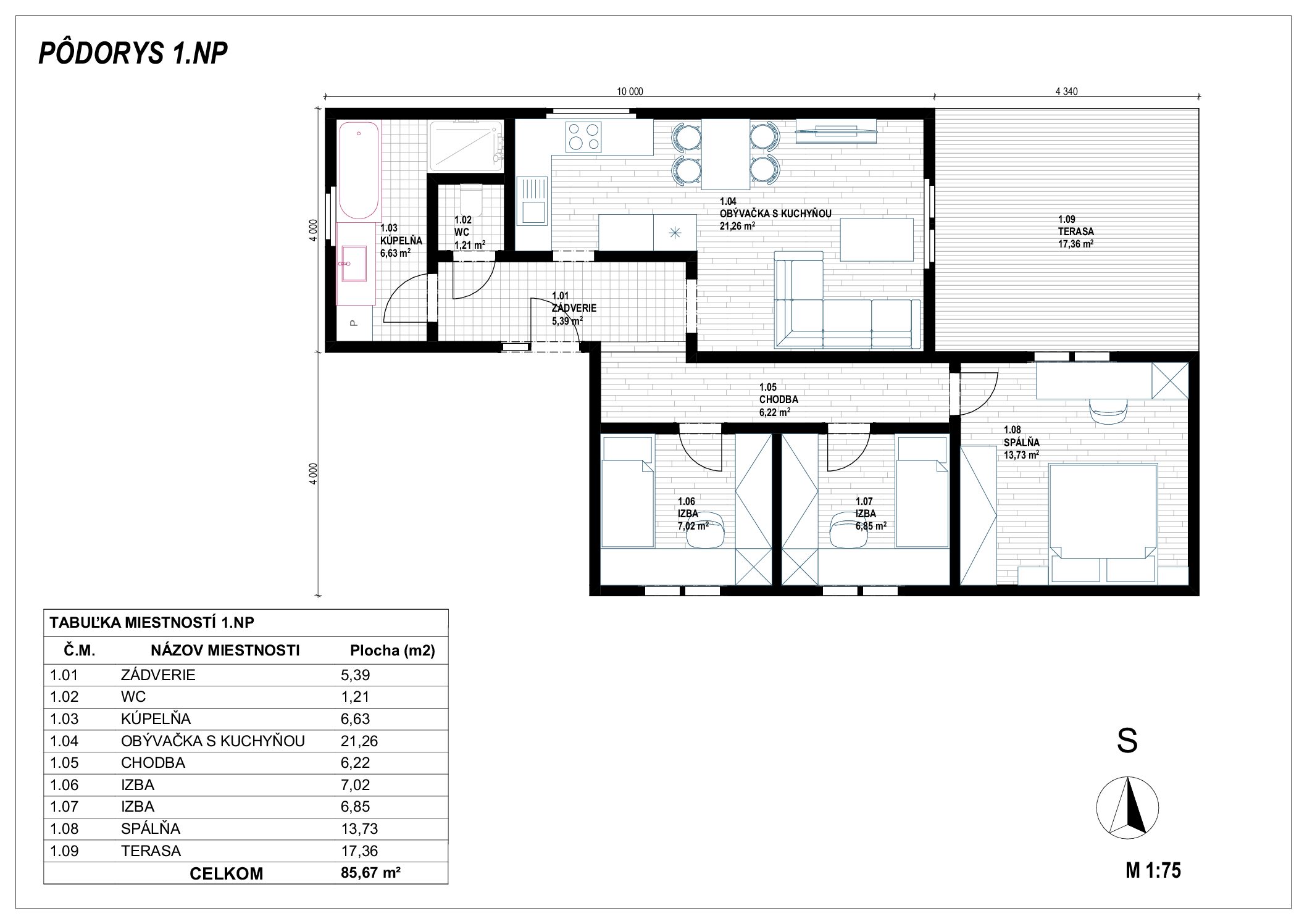
Pôdorys a dispozícia domu

Moderný 4-izbový rodinný dom s úžitkovou plochou 85,67 m² vrátane terasy, ponúka prakticky riešenú dispozíciu s dôrazom na komfortné bývanie. Dominantou domu je svetlá obývacia izba prepojená s kuchyňou a jedálňou s priamym vstupom na priestrannú terasu, zatiaľ čo nočnú časť tvoria tri samostatné izby, kúpeľňa a samostatné WC. Dispozíciu dopĺňa vstupné zádverie a chodba, pričom celkové riešenie je možné flexibilne prispôsobiť individuálnym požiadavkám zákazníka.
Stiahnuť podorys
Ako prebieha spolupráca
01
Výber domu
Vyberiete si z našej ponuky modulových drevodomov alebo nás kontaktujete s individuálnou predstavou.
Spoločne preveríme možnosti osadenia na vašom pozemku a technické požiadavky.
02
Spracovanie dopytu a konzultácia
Na základe vstupných informácií pripravíme detailné riešenie vrátane technickej špecifikácie.
Konzultujeme dispozíciu, materiály, vybavenie aj rozsah realizácie.
03
Cenová ponuka a podpis zmluvy
Vypracujeme transparentnú cenovú ponuku s presne definovaným rozsahom dodávky.
Po odsúhlasení nasleduje podpis zmluvy a stanovenie termínu výroby.
04
Výroba modulov
Výroba začína po úhrade 50 % z dohodnutej ceny.
Dom vyrábame v kontrolovaných podmienkach našej dielne, čo zaručuje presnosť, kvalitu a dodržanie termínu realizácie.
05
Doprava a odovzdanie
Po dokončení výroby sa uhrádza zvyšných 50 % z ceny.
Následne zabezpečíme dopravu modulov na váš pozemok, ich osadenie na pripravený podklad a finálne odovzdanie domu.

Skúsenosti našich klientov

S firmou sme mali veľmi dobrú skúsenosť. Všetko prebehlo podľa dohody, termíny boli dodržané a kvalita práce je na vysokej úrovni. Ďakujeme za profesionálny prístup.

Tomáš K.,
Trnavský kraj

Pri výbere firmy sme mali veľa otázok, ale už po prvých stretnutiach sme mali pocit, že sme sa rozhodli správne. Komunikácia bola otvorená, všetko prebehlo podľa dohody a výsledná kvalita domu nás veľmi príjemne prekvapila. Oceňujeme najmä precíznu prácu a profesionálny prístup počas celej realizácie.

Silvia K.,
Nitriansky kraj

Od začiatku sme mali dobrý pocit zo spolupráce. Všetko nám bolo jasne vysvetlené, komunikácia bola rýchla a korektná. Realizácia domu prebehla podľa dohody a výsledok dokonca prekonal naše očakávania. Oceňujeme profesionálny prístup, ochotu riešiť detaily a kvalitu práce. S výsledkom sme veľmi spokojní a firmu by sme bez váhania odporučili ďalej.

Martin L.,
Prešovský kraj

Celý proces prebehol veľmi hladko. Oceňujeme profesionálny prístup, jasnú komunikáciu a dodržanie dohodnutých termínov. Modulový dom splnil naše očakávania.

Roman Š.,
Trnavský kraj

Všetko, čo potrebujete vedieť

Pripravili sme pre vás prehľad najčastejších otázok a dôležitých informácií o modulových domoch.
Získate jasný obraz o procese, technických riešeniach aj podmienkach realizácie.
Aké typy modulových domov ponúkate? +

Ponúkame tri základné veľkosti modulových drevodomov s úžitkovými plochami:

  • 34 m² – kompaktné riešenie vhodné ako štartovacie alebo rekreačné bývanie
  • 72 m² – plnohodnotné celoročné bývanie
  • 85 m² – komfortnejší dom s väčšou dispozíciou

Každý model dodávame v štandardnom vyhotovení, pričom ho vieme upraviť a prispôsobiť aj individuálnym požiadavkám zákazníka (materiály, dispozícia, technológie, výbava).

V akom stave modulový dom dodávate? +

Modulové domy dodávame ako kompletné a pripravené na užívanie v štandardnom vyhotovení.
Rozsah dodávky, technické riešenia a materiály, ktoré sú zahrnuté v základnej cene, nájdete vždy pri konkrétnom modeli v produktovom okienku v časti „Čo je v základnej cene štandardného vyhotovenia“.

Individuálne úpravy, zmena materiálov alebo rozšírenie výbavy riešime na základe nezáväzného dopytu a následnej konzultácie.

Potrebujem stavebné povolenie? +

Áno, vo väčšine prípadov je stavebné povolenie potrebné, avšak vždy záleží od konkrétnych okolností.

Povinnosť stavebného povolenia sa posudzuje individuálne podľa:

  • veľkosti modulového domu (napr. pri našich domoch od cca 40 m²),
  • spôsobu osadenia (pevné základy vs. dočasné uloženie),
  • napojenia na inžinierske siete (elektrina, voda, kanalizácia),
  • účelu využitia (trvalé bývanie, rekreácia),
  • miestnych regulácií, územného plánu obce a rozhodnutia stavebného úradu.

Ak je modulový dom určený na trvalé bývanie, je pevne spojený so zemou a napojený na siete, spravidla sa posudzuje ako jednoduchá stavba, ktorá si vyžaduje stavebné povolenie a následnú kolaudáciu.

Menšie objekty alebo domy bez pevných základov môžu v niektorých prípadoch spadať pod ohlásenie stavby, avšak vždy rozhoduje miestne príslušný stavebný úrad.

Odporúčame ešte pred objednávkou overiť podmienky na konkrétnom stavebnom úrade. Radi vám s tým pomôžeme a poskytneme podklady k domu pre konzultáciu s úradmi.

Je potrebná obhliadka pozemku? +

Áno. Osobná obhliadka je povinnou súčasťou procesu pred vypracovaním záväznej cenovej ponuky. Umožňuje nám posúdiť prístupové cesty, terén, možnosti osadenia modulu a určiť presnú cenu dopravy a montáže.

Ako prebieha celý proces realizácie? +

Proces je rozdelený do niekoľkých jasných krokov:

  1. Výber modulového domu
  2. Spracovanie dopytu a konzultácia 
  3. Cenová ponuka a podpis zmluvy 
  4. Výroba modulov 
  5. Doprava, osadenie a odozvdanie
Ako dlho trvá výroba modulového domu? +

Orientačná doba výroby je zvyčajne 4 – 8 týždňov, v závislosti od typu vybraného domu.
V prípade individuálnych úprav alebo rozšírenia výbavy sa môže termín výroby primerane predĺžiť.

Je modulový dom vhodný na celoročné bývanie? +

Áno. Modulové domy MODULMAX sú navrhnuté ako celoročné stavby s dôrazom na izoláciu, energetickú efektivitu a komfort bývania.

Je možné dom MODULMAX v budúcnosti rozšíriť? +

Samozrejme. MODULMAX domy sú navrhnuté ako modulárny systém, ktorý umožňuje dodatočné rozšírenie o jeden alebo viac modulov podľa vašich potrieb. Konkrétne možnosti rozšírenia závisia od zvoleného modelu, osadenia domu a miestnych stavebných podmienok.

Je možné modulový dom v budúcnosti presunúť? +

Modulové domy sú do určitej miery mobilné.
Možnosť presunu závisí od konkrétneho riešenia, technických podmienok a lokality.

Pomáhate aj s prípravou pozemku a infraštruktúrou? +

Vybrané doplnkové služby je možné riešiť individuálne, napríklad:

  • realizáciu základov
  • administratívnu pomoc s povoleniami
  • návrh interiéru

Rozsah týchto služieb nie je automatickou súčasťou každého projektu.

Viem si modul prispôsobiť podľa seba? +

Áno. Ponúkame možnosť prispôsobiť:

  • dispozíciu,
  • obklady a materiály,
  • okná, dvere, farby a doplnky,
  • prístrešok, terasu

Všetky požiadavky posudzujeme individuálne a snažíme sa zákazníkom vyjsť v ústrety.

Viete vyrobiť modulový dom aj na mieru podľa mojich požiadaviek? +

Áno. Ak vám nevyhovujú naše štandardné modely, vieme pre vás navrhnúť a vyrobiť modulový dom úplne na mieru. Môžete si prispôsobiť dispozičné riešenie, veľkosť, materiály, výbavu, typ obkladov, farby, technológie aj interiérové prvky.
Po konzultácii pripravíme návrh riešenia presne podľa vašich predstáv.

Ako prebieha platba? +

Platobný proces je rozdelený na 2 etapy:

  • záloha 50% z ceny po podpise zmluvy
  • doplatok po ukončení výroby, pred transportom

Presné podmienky sú vždy uvedené v zmluve.

Ponúkate aj financovanie? +

Priame financovanie neposkytujeme, no vieme odporučiť finančných partnerov, ktorí pomáhajú s riešením úveru alebo financovania bývania.

Aká je životnosť modulového domu? +

Pri správnej údržbe je životnosť modulového domu 50+ rokov, v závislosti od použitých materiálov a spôsobu užívania.

Kto zabezpečuje záruku a servis? +

Záruku poskytuje značka MODULMAX v súlade so zmluvnými podmienkami.
Rozsah záruky závisí od typu domu a variantu vyhotovenia.

Zobraziť všetky

Máte otázky alebo záujem o modulový dom?

Nezáväzná konzultácia je prvým krokom k vášmu novému bývaniu.
Sme pripravení odpovedať na vaše otázky.
Získať cenovú ponuku
Kontaktujte nás

Iné modely modulových domov

Modul Compact

Kompaktný a plnohodnotný modul s dostatkom priestoru pre trojčlennú rodinu s úžitkovou plochou 72 m². Dispozícia domu umožňuje komfortné prepojenie interiéru s veľkou terasou. Dodaný za 6-8 týždňov.
od 77.900€ s DPH
Zobraziť detail modulu
80 m²

Modul Tiny

Úsporný, praktický a jednoduchý modulový drevodom pre jednotlivcov alebo páry s úžitkovou plochou 34 m². Ideálny ako víkendové bývanie, hosťovský dom alebo štartovací domov. Je kedykoľvek rozšíriteľný o ďalší modul alebo terasu. Vyrobený z poctivých prírodných materiálov, dodaný za 4 týždne.
od 45 900 € s DPH
Zobraziť detail modulu
40 m²
© 2025 MODULMAX. Všetky práva vyhradené.
Vytvorené v
crossmenuchevron-down